btn_menu (011) 4233-0138 || (011) 15-5180-3125
Fotos Fotos
Datos Volver
Oportunidad

AMPLIO LOTE CON CONSTRUCCIÓN EN VENTA EN GUERNICA

Location CALLE 20 ESQUINA CALLE 30 - Guernica

Prev
Prev
Venta
USD 40.000
Propiedad

Lotes / terrenos

Credito

Con apto crédito

Superficie

Sup. cubierta 200m2

Superficie Total

Sup. total 1300m2

Condicion

Estado Muy bueno

Codigo Código de propiedad: 250321

Datos Acerca de la propiedad

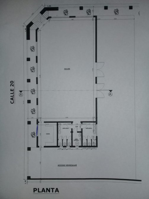
Inmueble en venta: LOTE DE TERRENO CON MEJORAS EN GUERNICA.                         
 
Calle: CALLE 20 ESQUINA 30
Superficie total del terreno: 1300M2.                    
Precio total: U$S 40.000.- (Libre de Gastos)
Consta de: se trata de un lote de terreno en esquina con una construcción de 200 m2.
Apta todo destino. Con planos aprobados.
Servicios: Paso de red de gas natural, luz trifásica, sobre calle consolidada.
Ubicación: Buena ubicación. A 1 cuadra de calle principal.
 
Consultas:  
Bolívar 1388 - 1º piso - oficina "4" - Longchamps -
tel.: 4233 – 0138/155-180-3125
www.lilianaretamales.com.ar
retamalesliliana@hotmail.com

Comodidades Comodidades

Ver más vermas

Datos Ubicación

Venta

USD 40.000

Datos Propiedades Relacionadas

Contacto

¿Te interesa esta propiedad?
Contactate ahora

Ver
Chatea con nosotros
Whatsapp